





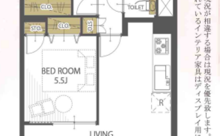
3LDK/68.88㎡
物件価格
2,599万円
仲介手数料:最大83.9万円が不要!
頭金0円で月々万円台よりご購入可能
月々の支払金額
円※ このシミュレーションには、諸費用・管理費・修繕積立金等は含まれておりません。あくまでも目安の数値となり、お借り入れを保証するものではありませんので、
実際の購入・借り入れにあたっては、金融機関でご確認いただくか、「お問い合わせ」よりご相談ください。
管理費 : 11,670円 / 修繕積立金 : 14,020円
投資用
ペット可
事務所可
宅配ボックス
オートロック
新耐震
フラット35S
フラット35
リノベーション
R1住宅
リフォーム
最上階の南向きバルコニー!!
2025年6月リフォーム完工済み!!

今福東1丁目の「ファミリーコーポ今福」最上階10階、南東向きにつき陽当り良好!2025年6月リフォーム完了で室内大変綺麗です。3LDK・68.88㎡でファミリーに最適。徒歩3分の今福鶴見駅を始め3駅利用可能!周辺にはコンビニもあり生活便利です。システムキッチン、浴室乾燥機など設備も充実。お問い合わせお待ちしております。
室内の照明等を点灯せず、自然光の明るさを計測しております。計測期間の平均値を使用しております。
| 100ルクス以下 | 100~200ルクス | 200~500ルクス | 500~750ルクス | 750ルクス以上 |
|---|---|---|---|---|
人々のさまざまな活動が安全・快適に行える環境を作るために、推奨する照度基準を定めたもので、作業内容や空間の用途に応じて推奨照度が設定されています。JIS照明基準では、200lx(ルクス)をリビングでの団らんや娯楽(軽い読書も含む)に推奨される照度と定めており、200ルクス以上の照度が取れていれば自然光でもリラックスして過ごすことができます。
勉強やPC作業等の作業は750ルクス以上が必要とされており、裁縫等のさらに緻密な作業には1000以上のルクスが推奨されています。
計測期間の平均値を使用しております。
| 70デシベル以上(地下鉄の車内・ 蝉の声) | 60~70デシベル(ファミレス・ コーヒーショップ店内) | 50~60デシベル(書店の店内・ 役所の窓口周辺) | 40~50デシベル(図書館の館内・美術館の館内) | 30~40デシベル(ホテルの室内) |
|---|---|---|---|---|
※参考:環境省
| マンション名 | ファミリーコーポ今福 | 住所 | 大阪府大阪市城東区今福東1丁目10-14 |
|---|---|---|---|
| 価格 | 2,599万円 購入シミュレーションClose 購入シミュレーション物件価格 2,599万円 仲介手数料:最大83.9万円が不要! 頭金 02,599 金利(年) 05.000 返済年数 145 借入金額 万円 月々の支払金額 円 返済総額 円 諸費用概算 約万円 上記の諸費用が必要となります。 ※ 借入条件を(物件価格、期間35年)で算出。 ※ 借地権の際は誤差が生じます。 ※ このシミュレーションは、あくまでも目安の数値となり、お借り入れを保証するものではありません。 | 土地権利 | 所有権 |
| 交通 | 大阪市長堀鶴見緑地 今福鶴見駅 まで 徒歩 3 分 大阪市長堀鶴見緑地 蒲生四丁目駅 まで 徒歩 14 分 大阪市長堀鶴見緑地 横堤駅 まで 徒歩 17 分 | 用途地域 | 商業地域 |
| 築年月 | 1975年06月(築51年) | ||
| 管理費 | 11,670円 | 修繕積立金 | 14,020円 |
| その他費用 | |||
| 管理方式 | 全部委託 | 管理会社 | スギタヒコナ株式会社 |
| 管理人 | 日勤 | 現況 | 空室 |
| 引渡し時期 | 相談 | 固定資産税・ 都市計画税 |
| 構造 | 鉄骨鉄筋コンクリート造(SRC) | 建物階数 | 地上10階 |
|---|---|---|---|
| 所在階 | 10階 | 総戸数 | 261 戸 |
| 専有面積 | 壁芯 68.88㎡ | バルコニー面積 | 6.83㎡ |
| 間取り | 3LDK | 方角 | 南東 |
| 駐車場 | |||
| バイク置き場 | 駐輪場 | ||
| ペット | 事務所利用 |
| 施工会社 | (株)熊⾕組 | 耐震診断 | |
|---|---|---|---|
| 再建築不可 | 既存不適格 | ||
| その他説明事項 | 司法書⼠は売主指定になります。
| ||
| その他 |
| 修繕積立金の総額 | 修繕積立金の滞納額 | ||
|---|---|---|---|
| 管理費の滞納額 | 管理組合の借入額 |
| 項目 | リフォーム | 内装完了日 | 2025年06月 |
|---|---|---|---|
| 内容 | キッチン新調、お⾵呂新調、洗⾯化粧台新調、トイレ新調、建具⼀式新調、ダウ
|
| 位置 | 最上階 | 部屋 | 全居室フローリング |
|---|---|---|---|
| 収納 | キッチン | システムキッチン | |
| 浴室・トイレ・洗面所 | 浴室乾燥機 | バルコニー | |
| 設備 | その他 | リフォーム | |
| 構造 | 設備 | エレベーター | |
| セキュリティ | 立地・環境 | 3駅以上利用可 / コンビニまで3分 |

国土交通大臣(1)第10226号
所属団体名(公益社団法人 全日本不動産協会 会員、公益社団法人 不動産保証協会 会員)
◆お問い合わせ対応窓口◆
取引態様:媒介
本サイト運営会社/株式会社FLIE(FLIEエージェント)
東京都中央区京橋1-1-5 セントラルビル3F
免許番号:国土交通大臣(1)第10892号
※売主様が対応可能な場合、直接手続きとなる場合があります。
報恩謝徳の誠で豊かさを追求し社会発展に貢献する。
※売主HPより引用
物件価格
仲介手数料:最大83.9万円が不要!
頭金
金利(年)
返済年数
返済総額 円
上記の諸費用が必要となります。
※ このシミュレーションは、あくまでも目安の数値となり、お借り入れを保証するものではありません。
※ 実際の購入・借り入れにあたっては、金融機関でご確認いただくか、「お問い合わせ」よりご相談ください。
※ 諸費用を含めた住宅ローンのご提案も承っておりますので、お気軽にご相談ください。
最近見た物件
ファミリーコーポ今福
無料通話番号
不動産取引の新しい常識へ
「買主と売主が自由に安心して直接取引できる不動産プラットフォーム」を目指しています。