











































◆◆ GW休暇のお知らせ ◆◆
拝啓 時下ますますご清祥のこととお慶び申し上げます。
平素は格別のお引き立てを賜り厚く御礼申し上げます。
誠に勝手ながら、以下の期間を休業とさせていただきます。
****************************************
ゴールデンウィーク休暇期間
2026年5月2日(土)~2026年5月6日(水)
****************************************
※休業期間中にお問い合わせいただきました件に関しては、
2026年5月7日(木)より順次ご対応させていただきます。
ご迷惑をお掛けいたしますが、何卒ご了承くださいますよう宜しくお願い申し上げます。
敬具
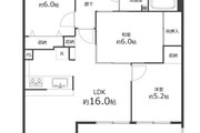
3LDK/75.14㎡
物件価格
3,990万円
仲介手数料:最大125.7万円が不要!
頭金0円で月々万円台よりご購入可能
月々の支払金額
円※ このシミュレーションには、諸費用・管理費・修繕積立金等は含まれておりません。あくまでも目安の数値となり、お借り入れを保証するものではありませんので、
実際の購入・借り入れにあたっては、金融機関でご確認いただくか、「お問い合わせ」よりご相談ください。
管理費 : 6,400円 / 修繕積立金 : 11,040円 / その他費用 : ■管理組合協力金:月額3,000円
投資用
ペット可
事務所可
宅配ボックス
オートロック
新耐震
フラット35S
フラット35
リノベーション
R1住宅
リフォーム
駅徒歩8分(600m)!
12階南向きのため眺望・陽当たり良好!

JR・地下鉄の3駅2沿線が利用でき「鶴舞」駅へは徒歩8分。通勤・通学に便利な立地です。11階部分の南西向き住戸で、都心を望む眺望と暖かな陽光が魅力。水回りを一新したリフォーム済みの室内は、まるで新築のよう。15帖以上の広々LDKでは家族団らんのひとときを。オートロックや宅配ボックスも完備し、快適な都市生活をサポートします。
室内の照明等を点灯せず、自然光の明るさを計測しております。計測期間の平均値を使用しております。
| 100ルクス以下 | 100~200ルクス | 200~500ルクス | 500~750ルクス | 750ルクス以上 |
|---|---|---|---|---|
人々のさまざまな活動が安全・快適に行える環境を作るために、推奨する照度基準を定めたもので、作業内容や空間の用途に応じて推奨照度が設定されています。JIS照明基準では、200lx(ルクス)をリビングでの団らんや娯楽(軽い読書も含む)に推奨される照度と定めており、200ルクス以上の照度が取れていれば自然光でもリラックスして過ごすことができます。
勉強やPC作業等の作業は750ルクス以上が必要とされており、裁縫等のさらに緻密な作業には1000以上のルクスが推奨されています。
計測期間の平均値を使用しております。
| 70デシベル以上(地下鉄の車内・ 蝉の声) | 60~70デシベル(ファミレス・ コーヒーショップ店内) | 50~60デシベル(書店の店内・ 役所の窓口周辺) | 40~50デシベル(図書館の館内・美術館の館内) | 30~40デシベル(ホテルの室内) |
|---|---|---|---|---|
※参考:環境省
| マンション名 | サンパーク鶴舞公園南 | 住所 | 愛知県名古屋市中区千代田3丁目31-30 |
|---|---|---|---|
| 価格 | 3,990万円 購入シミュレーションClose 購入シミュレーション物件価格 3,990万円 仲介手数料:最大125.7万円が不要! 頭金 03,990 金利(年) 05.000 返済年数 145 借入金額 万円 月々の支払金額 円 返済総額 円 諸費用概算 約万円 上記の諸費用が必要となります。 ※ 借入条件を(物件価格、期間35年)で算出。 ※ 借地権の際は誤差が生じます。 ※ このシミュレーションは、あくまでも目安の数値となり、お借り入れを保証するものではありません。 | 土地権利 | 所有権 |
| 交通 | 中央本線 鶴舞駅 まで 徒歩 8 分 名古屋市名城線 東別院駅 まで 徒歩 11 分 名古屋市名城線 上前津駅 まで 徒歩 11 分 | 用途地域 | 商業地域 |
| 築年月 | 2000年11月(築26年) | ||
| 管理費 | 6,400円 | 修繕積立金 | 11,040円 |
| その他費用 | ■管理組合協力金:月額3,000円 | ||
| 取引形態 | 売主 | ||
| 管理方式 | 全部委託 | 管理会社 | ミソノサービス株式会社 |
| 管理人 | 巡回 | 現況 | 空室 |
| 引渡し時期 | 相談 | 固定資産税・ 都市計画税 |
| 構造 | 鉄骨鉄筋コンクリート造(SRC) | 建物階数 | 地上14階 |
|---|---|---|---|
| 所在階 | 12階 | 総戸数 | 64 戸 |
| 専有面積 | 壁芯 75.14㎡ | バルコニー面積 | 10.36㎡ |
| 間取り | 3LDK | 方角 | 南西 |
| 駐車場 | |||
| バイク置き場 | 駐輪場 | ||
| ペット | 不可 | 事務所利用 |
| 施工会社 | 清水建設 | 耐震診断 | |
|---|---|---|---|
| 再建築不可 | 既存不適格 | ||
| その他説明事項 | ※図面と現況に相違がある場合は現況優先とします。
| ||
| その他 |
| 修繕積立金の総額 | 修繕積立金の滞納額 | ||
|---|---|---|---|
| 管理費の滞納額 | 管理組合の借入額 |
| 項目 | リフォーム | 内装完了日 | 2026年04月(中旬) |
|---|---|---|---|
| 内容 | ●システムキッチン新規交換
|
| 位置 | 部屋 | LDK15畳以上 | |
|---|---|---|---|
| 収納 | キッチン | カウンターキッチン / 3口以上コンロ | |
| 浴室・トイレ・洗面所 | バルコニー | ||
| 設備 | その他 | ||
| 構造 | 設備 | 宅配ボックス / エレベーター | |
| セキュリティ | オートロック / 24時間セキュリティ / ディンプルキー / 防犯カメラ | 立地・環境 | 2沿線以上利用可 |
情報提供日:2026年04月24日 / 次回更新日:2026年05月08日
| 近隣施設 1 | ナカク千代田3丁目歯科クリニック 24m |
|---|---|
| 近隣施設 2 | ぶどうの実保育園 42m |
| 近隣施設 3 | リハトレわかば 79m |
| 近隣施設 4 | 木村クリニック 107m |
| 近隣施設 5 | ファミリーマート 名古屋千代田店 111m |

国土交通大臣(3)第8603号
所属団体名((公社)全日本不動産協会/ (公社)不動産保証協会/ 東海不動産公正取引協議会加盟/ (一社)リノベーション協議会)
「都心、首都圏、地方大都市で、やはりアクセスの良い立地に、理想の家を持ちたい。」
当社の中古マンションリノベーション物件はお手頃な価格で理想の家を提供いたします。理想と品質にこだわったホームネットのリノベーションで快適な価値ある生活をお過ごしください。
またホームネットでは、「価値ある生活空間をご提供する」リノベーションブランド「FURVAL」 を展開しています。
物件価格
仲介手数料:最大125.7万円が不要!
頭金
金利(年)
返済年数
返済総額 円
上記の諸費用が必要となります。
※ このシミュレーションは、あくまでも目安の数値となり、お借り入れを保証するものではありません。
※ 実際の購入・借り入れにあたっては、金融機関でご確認いただくか、「お問い合わせ」よりご相談ください。
※ 諸費用を含めた住宅ローンのご提案も承っておりますので、お気軽にご相談ください。
サンパーク鶴舞公園南
無料通話番号
不動産取引の新しい常識へ
「買主と売主が自由に安心して直接取引できる不動産プラットフォーム」を目指しています。