

◆◆ GW休暇のお知らせ ◆◆
拝啓 時下ますますご清祥のこととお慶び申し上げます。
平素は格別のお引き立てを賜り厚く御礼申し上げます。
誠に勝手ながら、以下の期間を休業とさせていただきます。
****************************************
ゴールデンウィーク休暇期間
2026年5月2日(土)~2026年5月6日(水)
****************************************
※休業期間中にお問い合わせいただきました件に関しては、
2026年5月7日(木)より順次ご対応させていただきます。
ご迷惑をお掛けいたしますが、何卒ご了承くださいますよう宜しくお願い申し上げます。
敬具
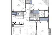
3LDK/69.03㎡
R1住宅 (適合リノベーション住宅) は、リノベーション協議会が定める「検査→工事→開示→保証→住宅履歴」の5つのフローに則ったリノベーションの統一規格です。
住宅のタイプ別に基準を設け、給排水や下地など目に見えない、分かりにくい重要なインフラ部分の検査 + 2年以上の保証、住宅履歴などを義務としています。
物件価格
9,980万円
仲介手数料:最大305.4万円が不要!
頭金0円で月々万円台よりご購入可能
月々の支払金額
円※ このシミュレーションには、諸費用・管理費・修繕積立金等は含まれておりません。あくまでも目安の数値となり、お借り入れを保証するものではありませんので、
実際の購入・借り入れにあたっては、金融機関でご確認いただくか、「お問い合わせ」よりご相談ください。
管理費 : 15,000円 / 修繕積立金 : 18,710円 / その他費用 : CATV利用料:月額315円
投資用
ペット可
事務所可
宅配ボックス
オートロック
新耐震
フラット35S
フラット35
リノベーション
R1住宅
リフォーム
中央線 特快停車駅、総武線、東西線 始発「三鷹」駅徒歩6分!
利便性と落ち着きが調和する中町に住う!
ペット飼育可能!(細則有り)
工事履歴
2025年 共用部分火災警報盤等更新工事
2025年 機械式駐車場シールキット交換工事
2024年 電子ブレーカー交換工事
2021年 機械式駐車場鉄部塗装工事

JR中央線「三鷹」駅徒歩6分の好立地!室内はリフォームにより水回り含め一新され、気持ちよく新生活を始められます。陽光あふれる南西角部屋の3LDKで、大切なペットとの生活も可能です(細則有)。食洗機や浴室乾燥機、宅配ボックスなど、日々の暮らしを支える設備も充実。利便性の高い三鷹中町で快適な毎日を。
室内の照明等を点灯せず、自然光の明るさを計測しております。計測期間の平均値を使用しております。
| 100ルクス以下 | 100~200ルクス | 200~500ルクス | 500~750ルクス | 750ルクス以上 |
|---|---|---|---|---|
人々のさまざまな活動が安全・快適に行える環境を作るために、推奨する照度基準を定めたもので、作業内容や空間の用途に応じて推奨照度が設定されています。JIS照明基準では、200lx(ルクス)をリビングでの団らんや娯楽(軽い読書も含む)に推奨される照度と定めており、200ルクス以上の照度が取れていれば自然光でもリラックスして過ごすことができます。
勉強やPC作業等の作業は750ルクス以上が必要とされており、裁縫等のさらに緻密な作業には1000以上のルクスが推奨されています。
計測期間の平均値を使用しております。
| 70デシベル以上(地下鉄の車内・ 蝉の声) | 60~70デシベル(ファミレス・ コーヒーショップ店内) | 50~60デシベル(書店の店内・ 役所の窓口周辺) | 40~50デシベル(図書館の館内・美術館の館内) | 30~40デシベル(ホテルの室内) |
|---|---|---|---|---|
※参考:環境省
| マンション名 | エクレールコート三鷹 | 住所 | 東京都武蔵野市中町2丁目2-7 |
|---|---|---|---|
| 価格 | 9,980万円 購入シミュレーションClose 購入シミュレーション物件価格 9,980万円 仲介手数料:最大305.4万円が不要! 頭金 09,980 金利(年) 05.000 返済年数 145 借入金額 万円 月々の支払金額 円 返済総額 円 諸費用概算 約万円 上記の諸費用が必要となります。 ※ 借入条件を(物件価格、期間35年)で算出。 ※ 借地権の際は誤差が生じます。 ※ このシミュレーションは、あくまでも目安の数値となり、お借り入れを保証するものではありません。 | 土地権利 | 所有権 |
| 交通 | 中央本線 三鷹駅 まで 徒歩 6 分 中央本線 吉祥寺駅 まで 徒歩 23 分 中央本線 武蔵境駅 まで 徒歩 24 分 | 用途地域 | |
| 築年月 | 2000年01月(築26年) | ||
| 管理費 | 15,000円 | 修繕積立金 | 18,710円 |
| その他費用 | CATV利用料:月額315円 | ||
| 管理方式 | 全部委託 | 管理会社 | ホームライフ管理(株) |
| 管理人 | 日勤 | 現況 | 空室 |
| 引渡し時期 | 相談 | 固定資産税・ 都市計画税 |
| 構造 | 鉄筋コンクリート造(RC) | 建物階数 | 地上8階 |
|---|---|---|---|
| 所在階 | 3階 | 総戸数 | 39 戸 |
| 専有面積 | 壁芯 69.03㎡ | バルコニー面積 | 15.6㎡ |
| 間取り | 3LDK | 方角 | 南西 |
| 駐車場 | 確認中 | ||
| バイク置き場 | なし | 駐輪場 | 確認中 |
| ペット | 可 (条件 : 飼育細則有) | 事務所利用 |
| 施工会社 | 大末建設(株) 東京支店 | 耐震診断 | |
|---|---|---|---|
| 再建築不可 | 既存不適格 | ||
| その他説明事項 | ※販売図面の内容と現況が異なる場合は現況優先とさせていただきます。
| ||
| その他 |
| 修繕積立金の総額 | 修繕積立金の滞納額 | ||
|---|---|---|---|
| 管理費の滞納額 | 管理組合の借入額 |
| 項目 | リフォーム | 内装完了日 | 2026年04月(下旬) |
|---|---|---|---|
| 内容 | フローリング新規貼替
|
| 位置 | 角部屋 | 部屋 | 全居室フローリング |
|---|---|---|---|
| 収納 | キッチン | カウンターキッチン / 食洗機 / 浄水器 / システムキッチン / 3口以上コンロ | |
| 浴室・トイレ・洗面所 | 浴室乾燥機 / 追い焚き | バルコニー | |
| 設備 | その他 | リノベーション / リフォーム / R1住宅適合物件 | |
| 構造 | 新耐震基準 | 設備 | 宅配ボックス / エレベーター |
| セキュリティ | オートロック / モニター付インターホン | 立地・環境 | 2沿線以上利用可 |
情報提供日:2026年04月23日 / 次回更新日:2026年05月07日
| 近隣施設 1 | 吉方病院 23m |
|---|---|
| 近隣施設 2 | 緑町歯科医院 30m |
| 近隣施設 3 | セブンイレブン 三鷹中央通り店 76m |
| 近隣施設 4 | 武蔵野警察署 77m |
| 近隣施設 5 | 池下レディースクリニック武蔵野 81m |

国土交通大臣(1)第10414号
所属団体名((公社)首都圏不動産公正取引協議会)
◆お問い合わせ対応窓口◆
取引態様:媒介
本サイト運営会社/株式会社FLIE(FLIEエージェント)
東京都中央区京橋1-1-5 セントラルビル3F
免許番号:国土交通大臣(1)第10892号
※売主様が対応可能な場合、直接手続きとなる場合があります。
-----------------------------
市場に眠っている誰もが気付かないような価値のある物件を見つけ出し、リノベーションでその価値を最大限に引き出し再び市場へ提供することが、私たちの使命です。
※売主HPより引用
物件価格
仲介手数料:最大305.4万円が不要!
頭金
金利(年)
返済年数
返済総額 円
上記の諸費用が必要となります。
※ このシミュレーションは、あくまでも目安の数値となり、お借り入れを保証するものではありません。
※ 実際の購入・借り入れにあたっては、金融機関でご確認いただくか、「お問い合わせ」よりご相談ください。
※ 諸費用を含めた住宅ローンのご提案も承っておりますので、お気軽にご相談ください。
エクレールコート三鷹
無料通話番号
不動産取引の新しい常識へ
「買主と売主が自由に安心して直接取引できる不動産プラットフォーム」を目指しています。