













◆◆ GW休暇のお知らせ ◆◆
拝啓 時下ますますご清祥のこととお慶び申し上げます。
平素は格別のお引き立てを賜り厚く御礼申し上げます。
誠に勝手ながら、以下の期間を休業とさせていただきます。
****************************************
ゴールデンウィーク休暇期間
2026年5月2日(土)~2026年5月6日(水)
****************************************
※休業期間中にお問い合わせいただきました件に関しては、
2026年5月7日(木)より順次ご対応させていただきます。
ご迷惑をお掛けいたしますが、何卒ご了承くださいますよう宜しくお願い申し上げます。
敬具
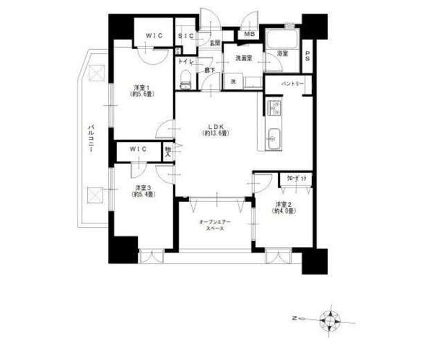
3LDK/65.6㎡
物件価格
5,790万円
仲介手数料:最大179.7万円が不要!
頭金0円で月々万円台よりご購入可能
月々の支払金額
円※ このシミュレーションには、諸費用・管理費・修繕積立金等は含まれておりません。あくまでも目安の数値となり、お借り入れを保証するものではありませんので、
実際の購入・借り入れにあたっては、金融機関でご確認いただくか、「お問い合わせ」よりご相談ください。
管理費 : 17,440円 / 修繕積立金 : 23,370円 / その他費用 : インターネットサービス料:2420円/月
投資用
ペット可
事務所可
宅配ボックス
オートロック
新耐震
フラット35S
フラット35
リノベーション
R1住宅
リフォーム
○オートロック付きマンション、ヨーロピアンテイストなエントランスがお出迎え♪
○犬・猫飼育可(細則あり)
○駐車場1住戸1区画完備!無償で利用可能です♪
○3階部分・角住戸、窓が多く風通しの良い室内!
○パントリーやウォークインクローゼットなど、豊富な収納スペース付き

京急線3駅2沿線利用可!内装を一新したリノベーション済3LDK。3階・角部屋で窓が多く、風通しの良い開放的な空間が広がります。大切なペット(犬・猫)との暮らしも可能(細則有)。駐車場が1台無料なのも大きな魅力です。WICやパントリーなど豊富な収納で室内はすっきり。オートロック・宅配ボックス完備で快適な新生活を。
室内の照明等を点灯せず、自然光の明るさを計測しております。計測期間の平均値を使用しております。
| 100ルクス以下 | 100~200ルクス | 200~500ルクス | 500~750ルクス | 750ルクス以上 |
|---|---|---|---|---|
人々のさまざまな活動が安全・快適に行える環境を作るために、推奨する照度基準を定めたもので、作業内容や空間の用途に応じて推奨照度が設定されています。JIS照明基準では、200lx(ルクス)をリビングでの団らんや娯楽(軽い読書も含む)に推奨される照度と定めており、200ルクス以上の照度が取れていれば自然光でもリラックスして過ごすことができます。
勉強やPC作業等の作業は750ルクス以上が必要とされており、裁縫等のさらに緻密な作業には1000以上のルクスが推奨されています。
計測期間の平均値を使用しております。
| 70デシベル以上(地下鉄の車内・ 蝉の声) | 60~70デシベル(ファミレス・ コーヒーショップ店内) | 50~60デシベル(書店の店内・ 役所の窓口周辺) | 40~50デシベル(図書館の館内・美術館の館内) | 30~40デシベル(ホテルの室内) |
|---|---|---|---|---|
※参考:環境省
| マンション名 | グランシティ蒲田東 | 住所 | 東京都大田区北糀谷1丁目18-8 |
|---|---|---|---|
| 価格 | 5,790万円 購入シミュレーションClose 購入シミュレーション物件価格 5,790万円 仲介手数料:最大179.7万円が不要! 頭金 05,790 金利(年) 05.000 返済年数 145 借入金額 万円 月々の支払金額 円 返済総額 円 諸費用概算 約万円 上記の諸費用が必要となります。 ※ 借入条件を(物件価格、期間35年)で算出。 ※ 借地権の際は誤差が生じます。 ※ このシミュレーションは、あくまでも目安の数値となり、お借り入れを保証するものではありません。 | 土地権利 | 所有権 |
| 交通 | 京浜急行電鉄空港線 大鳥居駅 まで 徒歩 15 分 京浜急行電鉄本線 梅屋敷駅 まで 徒歩 15 分 京浜急行電鉄本線 京急蒲田駅 まで 徒歩 16 分 | 用途地域 | 近隣商業地域 / 準工業地域 |
| 築年月 | 2005年04月(築21年) | ||
| 管理費 | 17,440円 | 修繕積立金 | 23,370円 |
| その他費用 | インターネットサービス料:2420円/月 | ||
| 管理方式 | 全部委託 | 管理会社 | 大和地所コミュニティライフ(株) |
| 管理人 | 日勤 | 現況 | 空室 |
| 引渡し時期 | 相談 | 固定資産税・ 都市計画税 |
| 構造 | 鉄筋コンクリート造(RC) | 建物階数 | 地上12階 |
|---|---|---|---|
| 所在階 | 3階 | 総戸数 | 34 戸 |
| 専有面積 | 壁芯 65.6㎡ | バルコニー面積 | 7.56㎡ |
| 間取り | 3LDK | 方角 | 西 |
| 駐車場 | 確認中 : 専用使用権有(無償)区画:No.311 | ||
| バイク置き場 | 確認中 : 125cc程度のバイク駐輪(月額900円)ミニバイク置場/月額1,200円 | 駐輪場 | 確認中 : 月額100~300円 |
| ペット | 可 (条件 : 犬・猫1住戸1匹迄飼育可(細則有)) | 事務所利用 |
| 施工会社 | 耐震診断 | ||
|---|---|---|---|
| 再建築不可 | 既存不適格 | ||
| その他説明事項 | 掲載と現況が異なる場合は現況優先します。 オープンエアスペース面積 6.00㎡ | ||
| その他 |
| 修繕積立金の総額 | 修繕積立金の滞納額 | ||
|---|---|---|---|
| 管理費の滞納額 | 管理組合の借入額 |
| 項目 | リノベーション | 内装完了日 | 2026年03月(上旬) |
|---|---|---|---|
| 内容 | ◆給湯器交換
|
| 位置 | 角部屋 | 部屋 | 全居室フローリング |
|---|---|---|---|
| 収納 | WICあり / SICあり | キッチン | カウンターキッチン / パントリー(収納庫) / 浄水器 / システムキッチン / 3口以上コンロ |
| 浴室・トイレ・洗面所 | 浴室乾燥機 / 追い焚き / 浴室に窓 / 温水便座洗浄機 | バルコニー | |
| 設備 | 全居室収納あり / CATV | その他 | リノベーション / リフォーム / フラット35適用 |
| 構造 | 新耐震基準 | 設備 | 宅配ボックス / エレベーター |
| セキュリティ | オートロック / モニター付インターホン / 防犯カメラ | 立地・環境 | 2沿線以上利用可 |
情報提供日:2026年04月22日 / 次回更新日:2026年05月06日
| 近隣施設 1 | セブンイレブン 大田区北糀谷1丁目店 250m |
|---|---|
| 近隣施設 2 | まいばすけっと北糀谷1丁目 350m |
| 近隣施設 3 | ライフ大森南店 400m |
| 近隣施設 4 | ツルハドラッグ 大森南店 500m |
| 近隣施設 5 | 大田区立北糀谷小学校 350m |

国土交通大臣(4)第7356号
所属団体名((公社)首都圏不動産公正取引協議会)
◆お問い合わせ対応窓口◆
取引態様:媒介
本サイト運営会社/株式会社FLIE(FLIEエージェント)
東京都中央区京橋1-1-5 セントラルビル3F
免許番号:国土交通大臣(1)第10892号
※売主様が対応可能な場合、直接手続きとなる場合があります。
-----------------------------------------------------------------
新しい住空間の創造を目指した総合住宅ディベロップメント企業である「マイプレイス」は、創業以来”人と地球にやさしい住まい”の追求を企業理念として掲げ、お客様にご満足していただくことを何よりの目標として努力を重ねてまいりました。
~まだ住める家から住みたくなる家へ~
年間800戸を超えるリフォーム実績があり、新築同様の高品質なリノベーションを実現しております。リノベーションマンション累計10,000戸の供給を達成いたしました。
※売主HPより引用
物件価格
仲介手数料:最大179.7万円が不要!
頭金
金利(年)
返済年数
返済総額 円
上記の諸費用が必要となります。
※ このシミュレーションは、あくまでも目安の数値となり、お借り入れを保証するものではありません。
※ 実際の購入・借り入れにあたっては、金融機関でご確認いただくか、「お問い合わせ」よりご相談ください。
※ 諸費用を含めた住宅ローンのご提案も承っておりますので、お気軽にご相談ください。
グランシティ蒲田東
無料通話番号
不動産取引の新しい常識へ
「買主と売主が自由に安心して直接取引できる不動産プラットフォーム」を目指しています。