







4LDK + WIC/80.0㎡
物件価格
6,099万円
頭金0円で月々万円台よりご購入可能
月々の支払金額
円※ このシミュレーションには、諸費用・管理費・修繕積立金等は含まれておりません。あくまでも目安の数値となり、お借り入れを保証するものではありませんので、
実際の購入・借り入れにあたっては、金融機関でご確認いただくか、「お問い合わせ」よりご相談ください。
管理費 : 15,600円 / 修繕積立金 : 14,400円 / その他費用 : インターネット使用料/月額1,045円
投資用
ペット可
事務所可
宅配ボックス
オートロック
新耐震
フラット35S
フラット35
リノベーション
R1住宅
リフォーム
方角部屋が家族の心にゆとりをプラスする
◆ペット飼育可(細則有)
◆宅配BOX有
◆24時間ゴミ出し可
◆防犯カメラ有
◆長期修繕計画有
◆外壁タイル貼
◆再開発により、利便性が高まった 「幕張」駅周辺
◆ターミナル駅へダイレクトアクセス可能
◆JR総武線「幕張」駅から「千葉」駅まで約10分、「西船橋」駅まで約16分
◆フラット35利用可

JR「幕張」駅徒歩2分の好立地。2019年築の築浅マンションです。陽光あふれる南西角部屋、80㎡の広々4LDK。15帖以上のLDKは家族団らんの空間に最適です。水回り中心のリフォームで気持ちよく新生活をスタート。大切なペットとの暮らしも可能(細則有)。宅配ボックスや24時間ゴミ出し可、WICなど暮らしを彩る設備も充実しています。
室内の照明等を点灯せず、自然光の明るさを計測しております。計測期間の平均値を使用しております。
| 100ルクス以下 | 100~200ルクス | 200~500ルクス | 500~750ルクス | 750ルクス以上 |
|---|---|---|---|---|
人々のさまざまな活動が安全・快適に行える環境を作るために、推奨する照度基準を定めたもので、作業内容や空間の用途に応じて推奨照度が設定されています。JIS照明基準では、200lx(ルクス)をリビングでの団らんや娯楽(軽い読書も含む)に推奨される照度と定めており、200ルクス以上の照度が取れていれば自然光でもリラックスして過ごすことができます。
勉強やPC作業等の作業は750ルクス以上が必要とされており、裁縫等のさらに緻密な作業には1000以上のルクスが推奨されています。
計測期間の平均値を使用しております。
| 70デシベル以上(地下鉄の車内・ 蝉の声) | 60~70デシベル(ファミレス・ コーヒーショップ店内) | 50~60デシベル(書店の店内・ 役所の窓口周辺) | 40~50デシベル(図書館の館内・美術館の館内) | 30~40デシベル(ホテルの室内) |
|---|---|---|---|---|
※参考:環境省
| マンション名 | クレアホームズ幕張駅前 | 住所 | 千葉県千葉市花見川区幕張町5丁目124-6 |
|---|---|---|---|
| 価格 | 6,099万円 購入シミュレーションClose 購入シミュレーション物件価格 6,099万円 頭金 06,099 金利(年) 05.000 返済年数 145 借入金額 万円 月々の支払金額 円 返済総額 円 諸費用概算 約万円 上記の諸費用が必要となります。 ※ 借入条件を(物件価格、期間35年)で算出。 ※ 借地権の際は誤差が生じます。 ※ このシミュレーションは、あくまでも目安の数値となり、お借り入れを保証するものではありません。 | 土地権利 | 所有権 |
| 交通 | 総武・中央緩行線 幕張駅 まで 徒歩 2 分 京成電鉄千葉線 京成幕張駅 まで 徒歩 4 分 京成電鉄千葉線 検見川駅 まで 徒歩 20 分 | 用途地域 | 近隣商業地域 |
| 築年月 | 2019年03月(築7年) | ||
| 管理費 | 15,600円 | 修繕積立金 | 14,400円 |
| その他費用 | インターネット使用料/月額1,045円 | ||
| 管理方式 | 全部委託 | 管理会社 | セントラルライフ株式会社 |
| 管理人 | 巡回 | 現況 | 空室 |
| 引渡し時期 | 相談 | 固定資産税・ 都市計画税 |
| 構造 | 鉄筋コンクリート造(RC) | 建物階数 | 地上7階 |
|---|---|---|---|
| 所在階 | 2階 | 総戸数 | 42 戸 |
| 専有面積 | 壁芯 80.0㎡ | バルコニー面積 | 10.98㎡ |
| 間取り | 4LDK + WIC | 方角 | 南西 |
| 駐車場 | あり(空有) : 月額8,000円~13,000円(原則1住戸1台)(令和7年10月24日現在) | ||
| バイク置き場 | あり(空無) : 月額100円~200円(原則1住戸2台)※ステッカー貼付(令和7年10月24日現在) | 駐輪場 | あり(空有) : 月額2,000円※ステッカー貼付(ミニバイクのみ)(令和7年10月24日現在) |
| ペット | 可 (条件 : 相談可(細則有)) | 事務所利用 | 不可 |
| 施工会社 | ファーストコーポレーション(株) | 耐震診断 | |
|---|---|---|---|
| 再建築不可 | 既存不適格 | ||
| その他説明事項 | ※税込価格とは、建物についての消費税を含んだ額です。
・サービスバルコニー面積/ 1.95㎡(約0.58坪)
| ||
| その他 |
| 修繕積立金の総額 | 修繕積立金の滞納額 | ||
|---|---|---|---|
| 管理費の滞納額 | 管理組合の借入額 |
| 項目 | リフォーム | 内装完了日 | 2025年11月(下旬) |
|---|---|---|---|
| 内容 | ■キッチン水栓、ガスコンロ備品 ■シャワーヘッドホース
※上記内容と現況が異なる場合は、現況優先とさせていただきます。
|
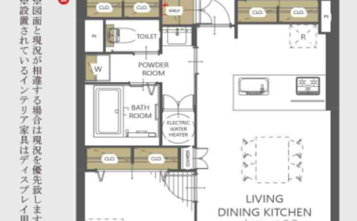
| 位置 | 角部屋 | 部屋 | LDK15畳以上 / 全居室フローリング |
|---|---|---|---|
| 収納 | WICあり | キッチン | カウンターキッチン / システムキッチン / 3口以上コンロ |
| 浴室・トイレ・洗面所 | 浴室乾燥機 / 温水便座洗浄機 | バルコニー | |
| 設備 | 全居室収納あり / ポーチ / BS / CS / CATV | その他 | リフォーム / フラット35適用 |
| 構造 | 新耐震基準 | 設備 | 24時間ゴミ / 宅配ボックス / エレベーター |
| セキュリティ | オートロック / モニター付インターホン / 防犯カメラ | 立地・環境 | 3駅以上利用可 / スーパーまで5分 / コンビニまで3分 / 2沿線以上利用可 |

国土交通大臣(1)第10123号
所属団体名((公社)首都圏不動産公正取引協議会)
◆お問い合わせ対応窓口◆
取引態様:媒介
本サイト運営会社/株式会社FLIE(FLIEエージェント)
東京都中央区京橋1-1-5 セントラルビル3F
免許番号:国土交通大臣(1)第10892号
※売主様が対応可能な場合、直接手続きとなる場合があります。
-----------------------------------------------------------------
【売主事業内容】
私どもは、これまでの「 建てては壊す 」というスクラップ&ビルドではなく、既存の建物の立地や環境を正しく評価し、「 良いものを長く大切に 」という考え方に基づき、そこに「 新しい息吹 」を吹き込むことで、新築にはない新たな「 価値 」を生み出します。
私どもの事業は、社会の要望であるとともに、地球環境の面からも意義のあることであると考えます。
未来都市開発が目指すのは、既存の立地にあった住空間を創造するリノベーションとリフォームを中心とした「 快適な理想の住まい 」の提供です。
※売主HPより引用
物件価格
頭金
金利(年)
返済年数
返済総額 円
上記の諸費用が必要となります。
※ このシミュレーションは、あくまでも目安の数値となり、お借り入れを保証するものではありません。
※ 実際の購入・借り入れにあたっては、金融機関でご確認いただくか、「お問い合わせ」よりご相談ください。
※ 諸費用を含めた住宅ローンのご提案も承っておりますので、お気軽にご相談ください。
クレアホームズ幕張駅前
無料通話番号
不動産取引の新しい常識へ
「買主と売主が自由に安心して直接取引できる不動産プラットフォーム」を目指しています。